Domiciles Gameshow Concept Bid Miniature Set Model
Semester 4 - Miniature Model Making
Term or Semester 4 of my UAL Professional Diploma for Art Departments covered various Mininature Model Making Techniques & Concept Art :
- Details Scaling
- Laser Cutting
- Texture
- Concept Art
- Photo Bashing
Concept Model Intro -
This was a 1:25 scale miniature set concept model, that not only was a learning platform for this Semester 4.
As a concept model this is in full colour and highly detailed to look like a miniature version of the real thing. This is a far more advanced model style compared to white card modelling which tends to be done by hand. This had to be as close to the final version as possible, so to get the detail most of it was laser cut
This was my bid for a competition to judge by the director’s course students, to decide which to progress to being the full-size gameshow set used in the end of year production Domiciles.
Storyline Script
The basic storylines start with 3 migrants in the home office immigration department awaiting an interview for their visa status then one, Javier falls asleep and wakes in a dream trapped in a outrageously racist xenophobic gameshow where the prize is a visa but the whole think is rigged to give the contestants little to no chance of winning like a kangaroo court.
Very much the kind of thing one may expect on a right-wing propaganda channel such as Fox, GB news or a dictatorship Shannel such as could be seen in Russia, Hungary, Belarus, North Korea, China etc
Basically, like a cat and mouse game of cruelty for the bullying far right host based on the likes of Pritti Patel and Suella Braverman in the UK or Marjorie Taylor Greene , (or a fan of the TV show The Boys think Firecracker) to get a kick out of offering false hope to the contestants just to enjoy seeing them suffer.
This is till the smart and canny Javier outsmarts her and turns the tables on her.
<   
Please click to download   
>
<  
Term or semester 4 Journal  
  
  
>
<   Miniature Modelmaking   
>
This includes full construction development for the various models and drafting along with any problem solving.
<< Click for Domiciles Treatment >>
<<< Click For Domiciles Script >>>
Please click to see the script and treatment we had to work on, to build this model and film the producion.

Politics and Nastiness Reasoning Taking it to the Max
Assigned Script and Treatment Download links
Thought before we go further, I would point out that I don’t subscribe the hateful right wing xenophobic mentality at all. its just a model of how I thought those who are would come up with a game show to have cruel fun at the expense of those they felt power over to ill-treat base on films/tv.
Please use the links below to read the treatment and script that we worked from, to understand how and why I interpreted them the way I did to develop my concepts to fit them. It is a nightmarish rigged, racist and xenophobic gameshow that ill-treats the migrant contestants so make it bad.
If making a villain’s lair make it as villainous as possible, likewise if working on an American teen comedy based in a frat house it will hold the wildest parties on campus, I put in the effort below to do the best:
I’m like the teacher in the John Lewis Christmas advert below who takes the school play to a whole new level as don’t want to do the usual boring recorder recital
 
 The basic concept came up was to have:
The host representing nationalist mentality of this country gleefully and enjoying lording it over the 3 migrant contestants, very much thinking she’s is queen of the castle able to do as she likes, with money, power privilege and protection but really still low class, uneducated not having earned any of it. The kind who would expect to see Ferro Roche chocolates as the ultimate luxury food at a diplomats party.
She is enjoying lording it over the humiliated and belittled, lower class, powerless, poverty induced 3 migrant contestants in a very rigged gameshow. With what appears to be a deportation rotten and rusty ship side with doors ready to slam open when a contestant is knocked out with black clad faced masked, robot-like storm trooper home office troops rush out the grab them and grab them back through the door screaming in terror which would then slam shut as the screams are cut off.
Till the tables are turned...
Detail Thinking to the Max
I’m like the teacher in the John Lewis Christmas advert below who takes the school play to a whole new level as don’t want to do the usual boring recorder recital and not interested in so called appropriateness. I will try to take things to logical conclusion and aim for the wow.
Other Examples of Taking Creative Work to the Max
Whatever I do creatively I go all in for, be it this example of what I interpreted a far right home ruled office and media such as GB and Fox news would create to indulge their cruel bigoted mentality however they chose being able to abuse their power or a cute snowcat as I thought a standard snowman would be boring or a giant Tarantula and prosthetics on myself to look like a goblin or a Star Wars prop project and more.
Pre Construction Phase
Research
During research I looked at:
- 70s gameshow formats, style, cultures, set builds techniques, the mechanics of how they did games and scoring and look.
- British souvenir shops for patriotic symbols and memorabilia
- Far right media such as Fox and GB news which is where I could see this being shown.
- Castles in particular the gate houses
- Rotton cheap and rough docks, such as from fantasy and pirates
- Shop holding bollards
- Rotton, rusty and worn shop doors
- English yob, football and houligan culture
- Roman gladiator arena entertainment both of gladiators and horrific executions whilst the raucous sadistic audience get their pleasure form the suffering of those in the arena. Laughing at, cheering and jeering.
- Films of dystopian futures where modern versions of the roman arenas of forced fights to the death and sadistic executions. Such as
- Sparticus
- The Running Man
- Death Race
- Hunger Games
- Battle Royal
- Rollerball
- The Boys
- Pennyworth
- Execution scenes such as that from the film ‘Let Him Have it’ as false wall doors are slid open with a bang so the victim can be dragged to the gallows next door and their doom.
- Trapdoor Spider webs and traps.
- There was also the option of basing the stormtrouper like immigration officers on Vinney Jones hard man characters from films like Snatch and his football yob personal from the movie Eurovision.
- https://www.youtube.com/watch?v=ZTqb_qEtVDc
- https://www.youtube.com/watch?v=Qx49T5WJ3vI
 The execution scene from 'Let Him Have It' where I got the idea of the doors from can be seen here
- https://www.youtube.com/watch?v=bukv-eOjyeo
Concept Phase

Sketch Ideation, Photo Bash Concept Art and Cad Development
Sketch Ideation followed by basic CAD concept modelling developed ideas.
I also acted out the grabbing movement for my stormtrooper like immigration officials to burst out of double doors, what distance was needed to grab the contestants and pull them back.
I photo bash my original concept that has the host sitting down on a swivelling chair depressed to look like a throne only a tacky version of one.
The host would get a British pub like desk podium with rooms for luxuries and refreshments such as cocktails and chocolates as well as sy7mbols of Britishness and memorabilia.
To emphasise power behind the host would be a classical temple like wooded decade. I modelled this on the old bailey to give the feel of a judge’s position and this would be lifted to a height to look down on the contestants.
This would be fitted with various buttons like the Bond villain or Dr Evil from Auston Powers to press to do things to the contestant and trigger the door opening and grabbing.
This was photo bashed onto the gameshow photos to show how it would work.
After a meeting with the director’s, I moved to having a standing and mobile host who could walk out from behind her podium. This would now be a mock castle so she could be queen like with here castle desk.
I also moved away from the idea of putting the contestants in cages and instead have life rings around their waist attached to roped for the troops to pull them in.
Concept Phase Follow Up - Switching to a Castle, Ship and Dock
This concept was intended for assessment by the directors and to get feedback.
They seem to like my concept, that very much played into old English class culture, xenophobia and racism, with the upper class getting to lord it over those they deem their inferiors.
A key element the directors wanted was that the host was mobile to walk around the set and walking up to the contestants, not sat down. They also were not keen on the cages.
Where were also some build issues.
Trying to create a high-quality wooden bar counter with brass bars or to hire one looks costly and logistically a problem due to weight.
The classical Old Bailey like back wall would also be costly to create and need far more skill in wood work.
It seems a far easier idea to go with a mock castle gate house, that could look cheaply made be that out of polystyrene or wood that’s painted or coated in carved foam or plaster or simply painted card, paper or material over a wooden frame. The cheap, low tech tacky look would fit the style of a 70s game show and be far easier, quicker and more importantly very cheap to construct, take apart assemble and store, possibly for re-use later.
It would just need to be structured to handle the host leaning on it and having the likes of drinks and snacks and fun accessories or patriotic memorabilia on it. This could be done with a high table, steel decking, a table with extended legs, a table on some crates or just card boxes giving lots of options.
The constants cages and giant dingey were changed to a rotten wood dock, with small box crates made from broken wood. Instead of a cage the contestants would just have life rings around them attached to a rope. Much easier to make.
Behind the Contestants would be a mock side of a ship ready to deport and take them away. A simple box room structure made of flats, with doors to contain the immigration officer troops ready to pull contestants into the darkness and doom.
This would all be emphasising the British class structure or upper verses lower class, with the well-funded home office far right, GB news on a power trip bullying those they see as subhuman beneath them and thus free to enjoy ill-treating to their hearts content.
The set would have 4 zones:
- The Host Castle Stage.
- The Gameshow Back Wall.
- The Contestants Lower Class Dock and Deportation Ship.
- The floor space dressed to represent the English Channel and a castle moat to keep out the migrants and infested with patriotic sharks (Originally warships either WW2 or 18th century style. Sharks would be easier to make, probably out of polystyrne and funnier, Austin Powers style).
Ergonomics
The set fits around people and there is not much room, there are also special action scenes to consider and things like podium heights.
Ergonomics was part of the research to work our size and positions to fit the contestants and make it possible for troops to be able rapidly rush out, grab a contestant and jump back for the doors to close.
I actually acted the movements out with an analogue of a podium with crates to test movements.
I used the Measure of Man and Woman book to do this.
CAD Component Design Phase
The set walls that make up the backdrop to Amie the host’s castle stage. The rear arrow and union jack wall, plus the ship would be made from standard flats. In the case of the castle rear wall, it needs to be measured around the host gate.
In terms of the ship trouper room behind the contestants the flats need to be measured so the gap falls on the ship door gaps and centre of the portholes to split evenly and enable working doorways.
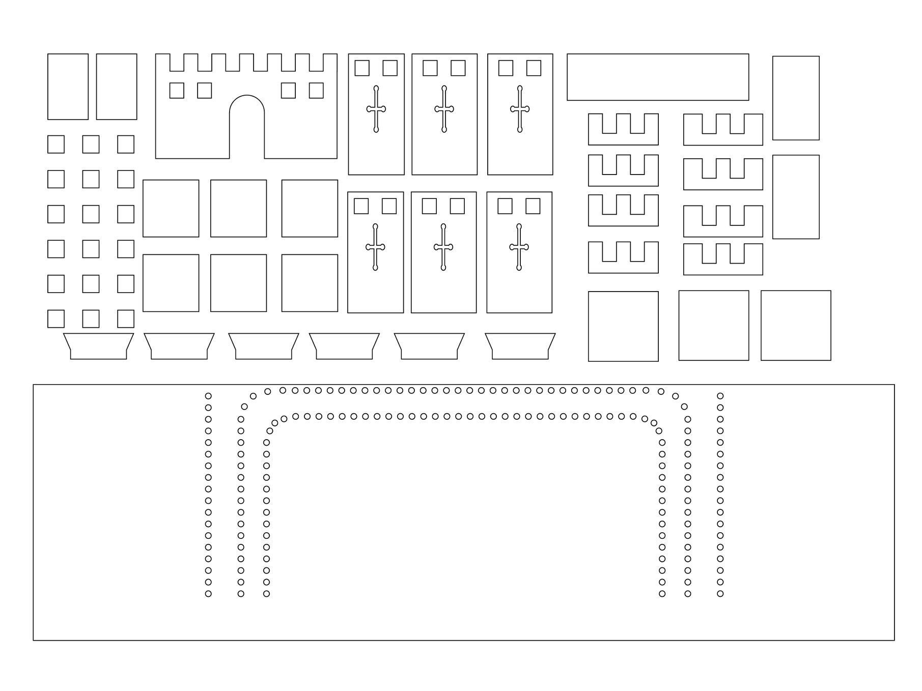
These flats are 120 x 240xm or 4 x 8 foot.The components were designed in Adobe Illustrator as laser cutters reply on vector art which is based on mathematical calculation making line art which will provide a path for the laser to follow.
These featured:
- Castle Parts
- Walls Window Arches
- Castle Doors
- Supports
- Host Gold Walkthrough
- Back Drop Loop Parts
- Rear Arrow Wall Signs
- Union Jack Flag
- Sections Guides for Rimstone Bulbs
- Text Characters, Ship Door Components
- Door Mechanics
- Door Opening Wheels
- Host Stage Parts
- Main and Ship Walls

CAD Component Design Phase
Castle Stage Component Design
The first zone of the set model that was designed was the castle podium desk.
This was to be based on a castle gate house, the reasoning being that it features most of the key features of a castle bar the central keep and looks castle like. This includes the gate, maybe with a portcullis, the crenulation, battlements floors and cover, towers and murder holes.
The Towers would be made square, as far easier to construct than round towers and could easily be flat packed. This could also be suitably sized and projects dominance and power.
I originally designed the castle to feature hatches for canons as I did have moulds for small cannons from, the CMS short course ships graveyard I helped build in 2017, but these were found to be too big. I changed the design to traditional castle cross murder holes that would be used to shoot arrows through with looked more authentic.
Whilst I started with simple straight walled towers. I developed this into towers with a widened upper floor like in a real castle, This is to provide holes to drop things onto an attacker and would make climbing up harder.
The designs were built in panels, front, the upper floor, the 3 sides of the tower, diagonal widening of the tower tops and gate.
The intention was to see this build using Par Light or Kappa Foam board on the model to the outer card layer could be peeled off then stone walls carved from the foam.
The 3 yellow rectangles are cutting patterns to make the gold foil, drop strip, walk through for the host to make an entrance through.
 
 As finishing up the castle wall I added in 70s style game show set decoration such as round corner, rectangular loops and lines of lighting up bulbs (on in my case stick on plastic rhinestones) and I added drop down union jack flags to push the nationalism and sense of power.
This was created on Adobe Illustrator with a lot of moving individual points and use of combining or trimming path tools.
The hardest part of this that took the longest was the lettering of the xenophobic football chant on the front of the stage made up of individually painted very small letters.
CAD Component Design Phase
Rear Gameshow Wall
Sector 2 could be the back wall that the audience would be looking straight at and could stick with the Game show elements. It was requested there be a large union jack so I decided to place this here.
It was also necessary for a gameshow logo to be included, that included the gameshow name:
“Get Out of Here”
I kept the colour pallet of red background with gold loops and incorporated the 70s style lines of light bulbs fairground lighting
I would have lighted to add some more features and a better Logo as was runnign out of time.
CAD Component Design Phase
Ship Component Design
 
 Whilst the host side of the stage is raised, luxurious with her raised stage, cushy gold carpet, gold strip entrance, castle podium with what someone from a lower class background made good with easy money would consider luxurious and upper class such as a tacky gold painted plastic crown, Ferro Roche chocolates, Prosecco cocktails with little umbrellas, oysters, caviar etc placed on it, a set of controls, buttons and to do unpleasant things to the constants are to be seen having it rough, humiliated, denigrated and uncomfortable.
The contestants would stand on what appears to be:
1) A rotten and broken aged, rotten, damp, irregular, crudely put together wood, looking like its calling apart, barnacled, mouldy, weed and bird poop covered sea dock awaiting shipping out.
Behind the contestants would be
2) What appears to be a rusty, un seaworthy, worn, tramp steamer ship side with rusty ship doors surrounded by a frame of fairground like lightbulbs looking like a ride. The would house a darkened room that immigration officers pounce out of and drag in contestants.
The model for the contestants would be built in two sections.
1) The model ship section would be built like the rest of the model. Designed on computer as vector art for the most part with later cut parts glued into place in layers with holes parking points to sick rhinestones to simulate bulbs.
2) The rock would bult organically from interwoven painted wooden strips make from coffee stirrers, spatulas and walnut wood laminate as well as dowels. There would be more roughly cut or broken to size with regular breaks and damage and dents, roughly painted, other model plant strand material and resin cast crates.
Laser cutting would be essential for a lot of the very fine detailed and fragile components such as the door mechanics.
The ships name would be done with with stick on letters and I tried to word the name as offensive and xenophobic as possible in line with the attiudes of far right types naming the ship the:
SS FO Jonny Foreigner
To fit the brief and treatment.
Score Indicators

Whilst the original wish from the directors for the scoring indicators was the rotating card flap mechanism where the numbers are on card handing from a barrel that rotates 0-9 I chose to try a more gameshow like accumulator indicators that could work by sliding a colour strip inside the from or simply fill it with coloured liquid, almost like a leak from the ship or being filled with seagull guano.
CAD Component Design Phase
Finished Set Zone Designs
 
These are the finished set zone designs before any texturing.
The ship will look a lot rougher and will include a rough organic dock that’s hand made. These designs are to make laser cut parts.
As can be seen the concept is to contrast the host and England side which is all luxury, richness, power, nationalism, brightness, vibrancy with gold, red, bastles, flags
Compared to
The ill-treated migrant darkness lacking warmth.
All enhancing how this is totally unfairlly rigged against them, courpt and little more them a powertrip, currupt where the contestans have no more chance than a mouse or bird being played with by a cat.
The language is also indicative and typical of far-right lower class thinking from the bigoted ignorant football hooligan yob mentality. A feel of despite getting money and power, the likes of Amie are still the ignorant racist low lives who enjoy bulling and lording it over others to feel good about themselves and be pretty much nothing without it.
The football chant lettering is the width of the whole stage and totally in the face of the migrant contestants, projecting a hostile rejecting attitude. The colouring gives a karaoke feel where the audience could sing along having gun at others expense.

CAD Component Design Phase
Developing CAD Designs Into Laser and Hand Cutting Templates
 
The CAD designs needed to be taken apart and laid out into template arrangements ready to be sent into Lightburn to be laser cut. I found out when doing this that when there is one loop inside other like with characters or doors with portholes or screw holes. These need to be separated into layers so the insides were done first. If not otherwise and if the outer edge is cut first, the item falls through the tray before the inside is cut.
Many of these templates needed the components separeted, to give some cooling space of a few mm between components.
Also unlike paper printouts the material tends to be far more expensive and there are only a few sheets available, there material wastage is very much avoided. This means the material maybe put into the laser cutter multiple times as different parts of the as material sheets are cut out of.
Ie left side, then right side then the gap in the middle. This means templates are often rearranged just before printing in Lightburn to fit.
Construction Phase
Materials and Tools
The plan on how to build the concept model was:
The scale would be 1:25
I would build both a gameshow set and separately a model of the actual studio to place the model of the set into to see how it would fit and raise any problematic issues. This would also enable other sets to be placed in the studio model.
Most of the model to be computer designed in vector art package Adobe Illustrator to product 2D cutting plans for components as most cutting would be 2 dimensional out of flat materials.
The reason for this is most parts were to be laser cut from a range of materials including:
- 0.5mm MDF as being this thin in plastic would result in melting and deforming.
- 1.0- and 1.5-mm or 2.00mm Polystyrene.
- Various thicknesses or Foamex or Par light modelling foam board where a layer of paper can be removed to carve the foam.
- The lightbulbs in the design and mentioned in the script could be done with stuck on 3mm rhine stone gems which seem to fit the scale size of typical bulbs.
- The contestant docks however would be organically built from spatula and coffee stirrer sticks broken to create an organic wood textured and broken dirty random appearance.
- The intention was to 3D print the podiums to look like rotten ship anchoring bollards seen on docks.
- This was later changed to piles of crates as I had some resin cast boxes from the ships graveyard model made for the early Miniature Model Making course in 2017 and had a silicon mould already made for suitably sized and scaled boxes. Plus, my 3D printer needs repair parts which should be costly.
- This was mostly glued with alternating sections of UHU glue plus superglue fixed with accelertor.
I was to purchase 1:25 scale people to populate the model.
The original plan had been to try and source tiny ships that could be placed between the host and contestant areas that would be scaled to the size of a large dog, ideally 18th century ship of the line models but those proved to hard to fand and would lack detail. Also looked at the idea of a model warship that would be scaled down from a around 3m long. This was also shelved.
The ship idea was replaced by rubber toys sharks which I attached flags to so ‘Patriotic sharks’ to symbolise the home office drive migrants and keep them out mentality which would also give a Austin Powers comical feel with the underlying sinister racisim.
Construction Phase
Laser Cutting Process
The laser cutter is designed to cut through different materials in different thicknesses which clearly burn differently. As well as setting layers, the setting for the speed of laser movement and the power in watts has to be set in balance with each other to try and get the best result that gives clean cuts, cuts all the way through and does not melt and distort. This may involve setting the laser to carry out multiple runs. It takes experiment, hit and miss to get this right and tables of settings should be written.
The machine will need calibration for each material to get the right distance of laser to material.
Plus, will need to do a dry run to make sure there is enough material to fit the cutting plan. If the material does not fit the fitting plan layout either the material may need moving or the layout rearranged may been to rearrange the items to fit.
A zero start point also needs setting be for hitting the go button.
Construction Phase
Castle Construction
The main material for the construction of the castle was a specialist foam board used for modelling.
This kind of material is made by various companies such as Kapa Foam, Foamex, Forex and Palight.
Unlike basic foam board used for presentation this material is designed to enable the user to peal off one of the cover layers of paper or plastic and then carve, heat treat, press the foam or use lightweight tools to shape and texture it with patters such as brickwork on in the cast of my castle stonework. It comes in different thicknesses and is designed for use with CNC and laser cutting tools.
Lasers need to be set to a fairly low level, enough to cut the foam cleanly but not enough to lent into the foam so it indents.
It also helps to separate the components by a few mm in the layouts in Lightburn before setting it to cut. The laser enables very fine details cuts down to a fraction of a mm and round smooth circles.
Stanley knives and scalpels were used to carve stonework into walls, after peeling off the top card.
To get a good stone paint texture I first sprayed from overhead and various angles in grey primer.
I then did this in black, and then came in at a very low angle with primer again lightly to create a patchy dry brush like effect that kept the black in the cracks and dents. White and green were also used very lightly.
Dark acrylic was used behind the windows and arrow slots to give a shadow interior and depth. I wanted to use black but had to settle for dark brown as that’s all that was available to laser cut.
Tiny triangular supports were added for a crenulation effect to support the upper floor in the towers.
To set the walls to be glued at 90 degrees I used an engineer’s square.
The gate was painted black then dry brushed brown for a wood plank effect.
The flags were printed onto double sided photo card and the flag pole was a tooth pick.
Construction Phase
Amie Hosts Stage
The stage was one of the simpler sections of the model build as mostly rectangular blocks. I cannot remember if this was a laser or scalpel cut out but I used the sand-coloured filler primer to colour the parts.
This was carved from Kapa foam board.
The stage featured a stage wide step on either side. The football chant on the front will be covered later.
The stage extends back through the rear wall with a tunnel made from flats surrounding it.
I made the mistake of straight cuts which were not so neat and had gaps so I used filler all around and sanded it smooth.
The stage was covered in a modelling suede like mock carpet material to indicate luxury.
Construction Phase
Amie Host's Side Backdrop
The backdrop to the host stage was to signify power and wealth as well as have the feel of a 70s game show.
There I used the rounded corner rectangular loops seen as set decoration in gameshows of the time. Added in the line banks of blubs to create the 70s gameshow feel and tech levels.
This to position the bulb correctly I used the laser cutter to cut out the backdrop shops making 1mm holes as markers for the stick-on rhine stones. But this also allowed the use of optic fibres or led strips giving options.
I Used my engineers square to help align the placing of the rhine stones.
Printout of the 1:1 scale Illustrator can design was used to position the loops by carefully cutting out the patterns from the printouts and laying them on the laser cut and painted red foamboard.
Over the weekend when I did not have access to the laser cutter and to save pretty much a weeks’ time I used a circle cutting compass to cut the gold curves centre decoration by hand.
I then masked off ready painted red sections to restore the gold filler primer paint.
The rhine stones were added one by one with careful use of a pair or needed tweezers. 
Construction Phase
Amie Hosts Backdrop Glitter Gold Walk Through Entrance
Common with 70s game show tackiness and cheapness was the golden drop strip walk through.
I got some foil like gold painted cellophane from fellow student Harrier but notice this was very prone to curling.
How I Cut It
To cut this straight I lightly sprayed some card with movable spray mount them pressed the gold cellophane against it. I then made a print out of the cutting pattern on paper and spray mounted this on top sandwiching the gold cellophane in the middle and thus holding all in place.
This was then very carefully cut with a scalpel as too risky to try the laser cutter likely to melt or set fire to it and there was no spare material.
I did this twice to make a denser and over lapping walk through
Once cut I carefully removed the paper and used white spirit to remove the glue.
Reducing the Curling Through Steaming
The Material; was sill curing up on itself horrendously so I tied to loosen and soften it by holding it over a steaming kettle to try and steam iron out the kinks and curls which had some effect but not enough.
Replacing the material with Glitter Foil
As all attempts to strained and relax the cellophane this in the end was replaced by double sided glitter foil thin card,
Construction Phase
Amie's Host Side Backdrop Flag Enhancements
The host backdrop also features drop flags banners.
This has been intended by myself from the start as they are often used by dictators and dictatorships (Abet much longer ones.) dropped from building to emphasize power and dominance as opposed to the standard pole flags these are more status symbols.
I wanted to have gold tassels on the bottom of the drop flag but attempts to so this with threads from a gold tassel really did not look good so I just stuck with the tassels on the print out and trying to carefully cut out the white card with a scalpel.
The stroll top roller pole at the top was made from a painted toothpick. The pommels are the same bronze beads I used as the base for the door locking wheels from the ship doors.
I used gold thread to make the handing loop to keep with the status symbol feel of wealth and power.
CAD Component - Font Choice & Text
Intro Copy Language and Font Reasoning
 
Typeface and wording is important to communicate attitude.
What fascists have learned with media advisors is to ditch the white hoods, nazi symbols, skin head intimidator look and make fascism fun, cheeky Chappy Farage and Farage with their pints and man of the people show with a pint and Mc Donalds pretending they are not the elite they talk about when very much are. GB news all bright and colourful, associating nationalism with wholesome religion and so called family values and this plays into that. The game show like in films like
- Running man
- Hunger Games
- Logans Run
- Battle Royal
- Death Race
- Rollerball
- The Boys
Roman Arenas makes fascism seem fun to a lesser thinking mob mentality where they can laugh and join in the inflicting of suffering thinking they are superior and untouchable and it cannot happen to them with no consequences to those they see as sub human criminal types even though those victims harmed none.
So, the game show is made to appear fun and jokey with a fun colourful façade front of the wall where the real ugliness & horror appears behind it.
To do the script justice its needs to exudes that attitude which is why I did this the way I did with the ships name, football chant and the upper class host stage like the Capital City in Hunger games verses the district, ww2 Jewish poor, medieval peasant, migrants shows has sub-human to abuse for fun before getting rid of them like a cat playing with food to feel powerful.
So the game show appears all fun and games and a laugh so people don’t see it for the horror it is.
Style
There were 3 pieces of text copy in the set.
  
- The Gameshow Logo
- The Shop Name
- The Stage Front Football Chant
Style
The game show was set in the 70s so the fonts that needed to be chosen needed to me 70s style. These tended to be :
- Round
- Fat
- Chunky
- Smooth
- Jello like
- Bottom Heavy
- Flowing
Yes Denoting:
- Fun
- Colourful
- Partying
- Liberal
- Energy
Not Denoting
- Formality
- Conformity
- Conservativism.
- Tradition
- Offices.
They also had to be clear.
There was also the intention to add a sinister edge.


The Chosen Font was Superdream

Construction Phase
Football Chant Song
The language is also indicative and typical of far-right lower class thinking from the bigoted ignorant football hooligan yob mentality.
A feel of despite getting money and power, the likes of Amie are still the ignorant racist low lives who enjoy bulling and lording it over others to feel good about themselves and be pretty much nothing without it.
The football chant lettering is the width of the whole stage and totally in the face of the migrant contestants, projecting a hostile rejecting attitude. The colouring gives a karaoke feel where the audience could sing along having gun at others expense.
I based this on the 1998 Vindaloo football chant song by Fat Les, then turned it into was a typical racist, yobbish, ignorant, hooligan, English nationalist, xenophobic attitude chant that could be expected at a football match and very in line with the mentality of the home office side.
The chant of song was :
Engerland Naah Naah,
Engerland Naah Naah,
We Rule,
We Cool,
Ye’re Not,
Get Out of Here
Facing directly at the contestants to push the message and something the audience could sing along at to be mean to the contestants and gang up on them to emphasize the power imbalance against the contestants.
The ship name was intended to be as offensive as possible and totally typical with the attitude of far right, racist nationalists always saying migrants should go back where they came from and referring to human beings as Johnny foreigner. To fit the seventies vibe the lettering would be glittery, fat round with light bulbs.
As mentioned this is most certainly not the way I think, taking the script to the max makes it all the more satisfying when the host gets what’s coming to her and a taste of here own as its her who is dragged off screaming.
Castle Football Chant Stage Front - Lots Of Problems to Solve
Splitting up the Letters Problem
This was the hardest part of the model and the slowest to construct. When I laser cut this proved difficult as to start with, I did not understand the issue of needing to set layers so the inside of the letters was cut before the outside. Which resulted in a couple of failed laser cuts before I realised this.
The next problem was how as the letters could not be broken into vector shapes in Lightburn and at Creative Media Skills there was no computers with Adobe Illustrator.
I have to wait to get to get home to fix this problem.
The technique as to change the font to vector shaped them to ungroup and the loops using path tools.
Once broken down into shapes I cut and pasted the inner parts of the font onto different layers before exporting it to .dxf files again to import into the Lightburn software.
Picking Out and Identifying the Characters
Once laser cut a number of problems came to light.
Firstly, the it was difficult to pick out many of the less obvious characters with ambiguous shapes like “I”, “r” and characters looking like other characters such as “h, n” and “u” as well as “e” and “@” and “f” and “t”. That was really had was to find the Character “I” dots, commas and apostrophe in the laser cut debris, these were tiny.
One thing I have been wise to do figuring out there would be a lot of lost characters was to laser cut 3 to four spares of each character.
There were 66 characters plus commas and apostrophe.
The characters were 5mm to fit the stage and the commas and apostrophes tiny, just over 1mm long.
Painting and Characters Blowing Away
Having somehow managed to pick out and separate the characters and likes of apostrophes the next problem was how to individually paint each one.
The design has all the letters different colours of the union jack flag so Red, White and Blue.
This meant paining all individually. That was 66 characters plus 6 apostrophes.
Thes were very small and light, 5mm for the characters 1-2mm for the commas etc.
This presented a big problem in spray painting as the air blast was blowing them away resulting in them being lost as well as poos rough paint finishing and being very hard to paint.
The way I got around this was to saturate the centres of large sheets of cardboard with spray glue, pressing the characters to the card and letting the glue set before painting them.
As the sprays spreads out in the end to get around this, additional problem I turned spray paint into pot paint by spraying into the spray paint cover lids then using a fine paint brush to paint the layers of paint so.
- Primer
- White
- Colour
- Additional layers of colour till the wite no longer showed
- Lacquer
Altering the Colour of the Stage front
This was a simple fix, I found that the colour of the letters and the gold glitter lacked the contract to make white characters stand out.
In the end I went with a peach coloured glitter. I also repainted all the red characters blue or white
Glueing Issues
Similar issues came up when it came to glueing the characters into place. To use superglue properly it needs to be used with activator spray, and spray blows the characters away.
To get around this I used fine point tweezers to held each letter, applied the glue to the underside putting into place.
Then Instead of using the spray I replicated the tactic of spraying into the lids to make a pot of activator. Then I soaked this up using twists of issues and used this to gently dribble crops of activator on the side of the characters held into place with tweezers so the activator chemicals could soak in setting the superglue in seconds.
Construction Phase
Rear Wall With Flag and Logo
The rear wall was, much simpler and planned to do last.
All done in Kapa Palight foam car the white backing of the union Jack.
The features were:
- Red Wall
- Lines of Bulbs (Rhinestones)
- Gameshow Logo.
- There was a mix of laser and hand cut parts.
The red wall first version was laser cut in particular the marker holes for the rhinestones.
I then realised that the arrow logo was too centred and needed to be moved closer to the ship end.
To do this I cut a second rectangle and painted it. I used pins to copy the hole pattern with my hand mini drill. The pins held the two layers together whilst I drill the holes from the first into the second a few centimetres over.
I also made the mistake of leaving the film cover in place before I painted. This meant the paint was not well stuck and kept flaking off, more so when the plastic film started to peel off. 
 
 I tried to strip this off and replacing but it left quite a rough finish.
Like elsewhere the rhinestones were adding one by one with needle nose tweezers., with engineer’s square helping to keep them aligned.
The union Jack proved harder to manage than I thought it would be as had to be the right way up but had to be done very precisely as the top and bottom are subtly different.
Glitter car was used to enhance the logo centre.
The earlier version done in time for the director’s choice meeting had blue foil to represent the water. Theis was later changed to blue Plastazote foam to look more refined.
I resin cast simulated A-frames to support the flats from behind to show how little room there would be around the set.
Construction Phase
Contestant Dock and Ship Side Intro
The contestant’s side was in two parts:
The delipidated old docks the constant stood on with their podiums Signifying their very low status in the minds of the far-right game shop creators, treated them as sub human and only one step away from deportation and doom.
In effect it’s like the condemned cell or waiting at the side of the gallows or other execution awaiting the doors to be pulled through to death. This is how I have portrayed it, with doors behind the contestants ready to slam open like a funnel web spider burrow behind them with black clad, storm trouper / riot police / inhuman officers jumping out to pounce on and drag the contestants screaming into the dark abyss. Though here its just a model with solid doors.
Behind them the doors are meant to appear like ships doors so heavy and metallic like those in-front of a gas chamber that were dirty and rusty.
They would be set against a wall looking like the side of a rusty ill kept, old unseaworthy, tramp steamer cargo vessel, with the feel of a slave ship. Devoid of comfort or human rights and not thought likely to survive a voyage with likely tetanus from its rough finish and barnacles etc
The door would be surrounded by Lightbulb in the life size version that would turn red when a constestant was to be dragged out if it was to be made, but here like elsewhere on the model 3mm Rhinestones were uses.
I surrounded one of the doors with red Rhinestones to simulate a contestant about to be pulled out. This would come with a buzzer.
The ship parts were all laser cut bar the side and read walls as just rectangles and easily cut by hand.
The contestants were to be deemed not worthy and human enough for proper podiums and the intention was to have them stand or kneel behind ship tie bollards, ideally rotten, cracked rusty, barnacle and moss infected and covered in seagull guano or poop, ideally with maggots.
Construction Phase
Ship Construction - Initial Ship Doorway Construction
The ship surfaces where laser cut from the usual Kapa or Palight foam board.
 Next the door surrounds were laser cut from 1 or half mm MDF as plastic that thin would be subject to warping I was told.
The inner door was 1 and 1.5mm polystyrene I believe to give a more metallic finish and depth whilst the rear was still MDF.
If the laser was too not there was the danger of indenting in the edge rather than a straight vertical cut.
These were spray painted in primer them metallics mixing chrome and steel, some black and copper or gold to get a good shade and mic with some dirty down sprays.
 The different layers like door frames and inner and outer door sections were done in different shades. 
The ship surface whilst mainly black has light spray mixes of metallics to metallize the finish and mess it up.
Several of the delicate door undersurface mechanics needed light repairs with superglue.
I also started to look at glued sand with rust dirty down spray to show rust on the doors.
The inside of the portholes as meant to be black acrylic but had to accept dark brown. to giove a glass window finish.
Marine Pressure Door Hand Crank Wheels and Portholes
The door locking wheels are hand cranks, used on pressure doors to evenly pressurize door seals and the door mechanics strips used to indelicate internal workers
The could only be done with precision laser cutting and were 0.5mm thick MDF to appear very thin and delicate and too thin to be made from plastic due to the laser heat.
The door handle or locking wheels and the door mechanics strips used to display internal mechanical were .5mm MDF.
They needed to appear very thin and delicate. This woudl have been difficult to laser out of plastic as likly to melt and warp wit the laser heat.
I had the wheels superglued to bronze beads to site them away from the doors and give them a pivot to look more metallic in copper.
As these were super delicate there were lots of spares made.
The portholes were also MDF as previous plastic attempts had warped. I also look into making portholes with 10 cm ringlets intended for clothes, flags and connecting strong points in materialsm but then would have not bolt holes on them.
As the doors where smooth shiny plastic they needed to be scratched up and roughened to aid adhesion.

CAD Component Design Phase
Horrendous Ship Name Text Applying
The ship name was intended to be as offensive as possible and totally typical with the attitude of far right, racist nationalists always saying migrants should go back where they came from and referring to human beings as Johnny foreigner. To fit the seventies vibe the lettering would be glittery, fat round with light bulbs. The gameshow was called 'Get out of Here' so it was worked around that
As mentioned this is most certainly not the way I think, taking the script to the max makes it all the more satisfying when the host gets what’s coming to her and a taste of here own as its her who is dragged off screaming.
- SS Get Out of Here
- SS FO
- SS Go Back
- SS Get Lost
- SS Removals
- SS Foreigner Fly Away
Till came up with:
SS FO Johnny Foreigner
Echoling the mentality of small minded little englander racists tend to say.
The ship text was easy by comparison. to the stage lettering.
By luck I could some stick text labels that fitted the gameshow just right both size and style.
Fat and Chunky, glittery and sequenced to simulate fairground light bulbs, these were just cut out and stuck on.
Score Accumulators Door Fairground Lightbulb Arrays
I chose to do the score systems as Fill up accumulators for several reasons:
- There was a set goal the contestants were aiming for, out just who scores the most as getting to 100 lean getting residence and passport. Thus, could show that as a prize.
- A fill up accumulator is very low tech like 70s game shows were.
- It could look like a leak from the boat and have dirty water flowing in.
- It would be clear as to what the target was.
- Thos would also be easy for us to make as no mechanics needed and could be made from mostly MDF but with a sealed area.
- These I decided to build in a laminated manner with white card or plastic at the back, the scale and name photo print out then the laser printed frame on top.
- This was also far easier for to build scaled down.
- Thes clearly had to be laser cut for the frames and had printouts gued behind using the superdream font

Construction Phase
The Rotting Contestant Dock
The dock was constructed differently to the rest of the model in that this was done very organically.
This time no laser cutting or CAD designing. This was constructed mostly from wooden coffee stirrers, split spatulas, strips of walnut laminate (Which looks old and darkened wood).
These were painted in a thin wash of burnt umber and other brown shades, with green dry brush patching.
The aim was to create an uneven moss and lichened wood effect to look weathered, worn, dirty, stained, water logged, mouldy etc.
The strip planks where broken and split in various positions.
The posts for the dock were made from twigs that had been cut to size with my Finn multi tool.
I used a box trap to capture the sections of twigs which tended to fly off when cut.
I then painted the twig ends.
I used the original foam board with texture printout dock as a reference base to start laying out the strip planks to act like roof rafters and is the base for the new dock.
The second and more solid layer started to be built across these at 90 degrees.
All parts were broken roughly to size but not uniform to create an uneven roughly made dock.
The planks were glued bit by bit with superglue and activator.
Holes were created by pushing the pits of the tweezers though the planks to break and crack them. Each of the broken parts was kept in place and dented sticking out like someone had put their foot through it.
More under dock ‘rafters’ were assed to strengthen the cock from underside.
More rust painting, dirty down spraying and glueing grains of sand were added to age the doors.
I used my silicon mould from my CMS 2017 Miniature Model Making course in 2017 to making box crates to build the podiums and paint them like the strip planks. First dab painted to get into all cracks, nooks and crannied then dry brushing burnt umber and mocha brown paint over the planks that form the box crates to give a wood appearance.
At this time, I also made a box mould for my mock A frame and started fast casting those as well.
I did experiment with adding white paint bird poop effects but sis not quite word so painted over in brown.
Laser cut dark acrylic disc were added to inside of the portholes. The inside of the shop box had lots of A Frame glued into place using a mix of accelerated superglue and rapid epoxy glue.
Spatulas where stuck to the underside of the rock extending back. These were glued using epoxy to the underside of the A frames stuck to the inside of the ship box, thus they acted as brackets.
Epoxy was used as I needed a bulky cement like glue as the parts were spaced out and not fitting well together, to pool space between the parts.
This bonded the docks and ship.
The original channel flooring was done with blue foil. I thought this looks cheap and tacky and replaced it with royal blue 2mm Plastazote foam which I thought looks more carpet and professional, looking back I think the fil looks more like water.
Construction Phase
Populating the Model and Adding the English Channel Sea
 
 People were to be added to show the scale of the model and give a real feel with the 3 contestants and the host.
I purchased 1:25 scale figures. I painted these using the same spray paint into lid to make paint pots. This provided a strong but thin paint.
I had a set of painting clips that held them up to paint.
I created life rings with oil based coloured clay Plasteline.
I did this as did not have Fimo clay that could be hardened in an oven at the time of experience using it. This will be done at a later date.
My gold thread was added to simulate the rope holding the contestants, but the preference would be something looking old and rotten but strong.
As the Plasteline is still soft this was loosely tied on. This was to show how they really were prisoners with little chance of escape.
These figures where superglued onto the dock. This glue was painted over and simulated planting onto the glue resin.
The intial sea was done witn blue foil. I had thought this looks poor quality and replaced 2mm royal blue plastazote foam for a more carpeted look but think now that should have better left as was.
Construction Phase
Armed Blockade Patriotic Sharks
The concept here was to combine the nasty unwelcoming mentality of the xenophobic far right, GB news, racists with their nationalistic keep foreigners out, using the English Channel as a moat as they complain about boat crossings, with comical ridiculousness straight out of Austin Powers.
The original idea had been to incorporate 1 or more war ships with a British feel such as Nelsons Victory ship or HMS Hood from WW2, but these were clearly likely to be very expensive, detailed and complex especially at size. This would be the case both with a model and full - size scale size.
This was downgraded to models of sharks both at model and full scale.
The top half of sharks are smooth and fairly simple both in shapes and colouring. These could be carved from polystyrene, wire mesh, paper marché etc and skinned with fibreglass. We only need the top half.
Sharks would really deter and fit as channel guards.
The funny side in line with the game show makers mentality, would be to add the likes of flags, Rule Britania tattoos and then go Dr Evil from Austin Powers and arm the sharks with laser guns or similar using war hammer weaponry.
At a model level I just went to my local toy shop and purchased a £2.00 packet of rubber hollow sharks. used Stanley and scalpel blades to splice them and glue on the flags.
When using superglue and accelerator I saw it left white stain steals of hardened glue. Instead of this messing things up I noticed they could be used as wakes and movement streaks so I painted the streaks with the glue.

Construction Phase
The Actual Studio
This is the actual college studio the game show was to be build in. Unfortunately, I cannot seem to find my empty studio photos.
Its about 14 meters Square and 3 metres high which means the hanging lights presented a major problem to for the audio sound recordist boom mike as well as filming.
It means we could not build the set as high as we would have liked.
It also meant we had to be careful with the gold confetti cannons dur to the risk of dislodging potential asbestos dust above the roof tiles.
This was used to build two Card models of the studio. One earlier 1:50 scale white card model which can be seen in the white card model :
https://www.chrisrosedesigns.com/white-card-model-3---amersham-studio-1
The second model was the miniature 1:25 scale rendered model used to contain this set my concept model and that of the one the directs picket which was fellow student Harriet.
Studio Model Construction
The studio model was created much the same as other white card models only I made the mistake of doing the walls first then trying to stick them to the base. This was partly due to being in a hurry.
So the elevations and base were drafted by scaling up the measurements from my original 1:50 scale white card studio model.
These were then photo spray mounted to the flam board which was stuck together by combining superglue and UHU glue , using the superglue as the holding mechanism and engineering squared used to make sure the walls were perpendicular and vertical
The underside of the studio had powerful magnets stuck on to help hold the various sets that could be placed inside.
This was then coloured in and the section below details how I added features like door handles.
Click the white card model phtoos to see that development.
Construction Phase
Door Detail and Handles
To enhance the model, I decided to add door handles and some of the metallic trim on the windows found that the staples from a staple gun were the ideal size for the door handles on a model set to 1:25 scale.
The disc bases to the door handles were a chopped-up Lego Arial painted silver metallic.
Superglue was used to stick the staples to these bases, with accelerator spray.
Thin strips of sticky foil were used to mimic the window frame trim on the doors.

You can also see the inside of the studio model with the door handles in place.
Construction Phase
Adding in A Frame Support simulators
Simulated A frames were created to show how much extra space would be needed around the set model in the real studio. This shows difficulties that there would be in walking around the set or moving things like ladders and props. 
Construction Phase
Placing Set Model into Studio Model
The concept set model was placed into my new 1:25 scale studio model so we could see how it would fit into the real studio to help with any adjustments. This also shows what could be the best way to orientate the set. Magnets were used to hold the set in the studio model.
Final Model
This is the almost final model with all features, in and out of the studio model.
Held my magnets.
The far better foam simulated water channel looked better and could simulate carpet.
The last thing to change would be the swap out the Plastaline life rings around the contestants
Fake plant material was also added to the dock.

 
  
  
  
  
  
  
  
  
  
  
  
  
  
  
  
  
  
  
  
  
  
  
  
  
  
  
  
  
  
  
  
  
  
  
  
  
  
  
  
  
  
  
  
  
  
  
  
  
  
  
  
  
  
  
  
  
  
  
  
  
  
  
  
  
  
  
  
  
  
  
  
 






























































































































































































































































































































































































































































































































































































































































































































































































